New Home

£325,000

On Market

Plot 36, Monmouth Terrace, Monmouth Terrace, Bridgwater,

TA6 5EJ

PROPERTY TYPE

House

BATHROOMS

2

BEDROOMS

4

RECEPTIONS

1

Describes how you own a property. There are different types of tenure - freehold, leasehold, and commonhold.

Freehold

Overview

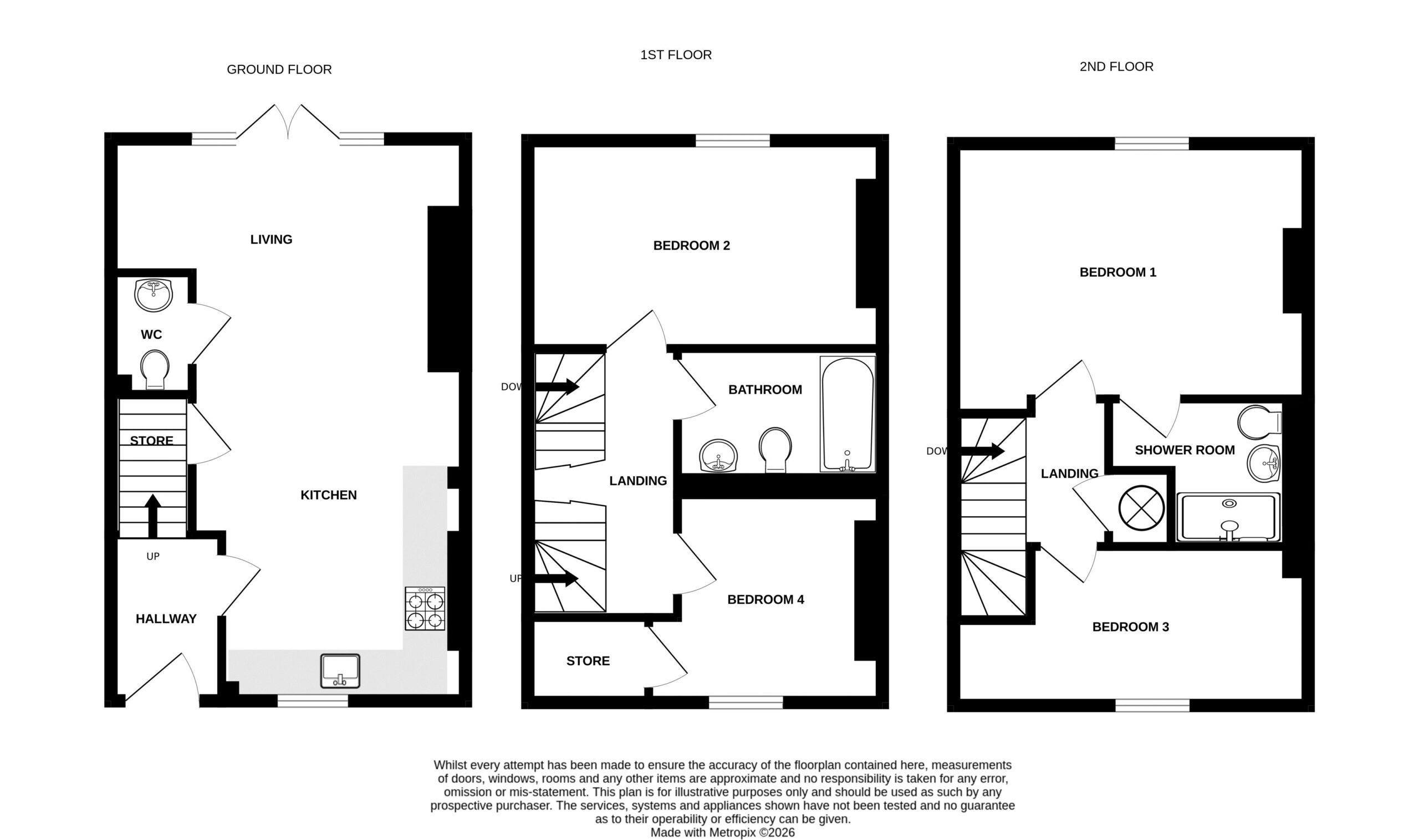
A superb mid-terrace, four-bedroomed townhouse with many interesting original features. From the Monmouth Street front door, the entrance hallway follows through to the well-appointed kitchen, eating space and living area at the rear. There is a WC and understairs cupboard for storage. Large French doors lead to the private garden and on to the allocated parking space via the rear gate. The staircase provides access to two first floor bedrooms and the family bathroom with white sanitaryware and contemporary black hardware. There is an additional store cupboard located within bedroom 3. Two further bedrooms occupy the second floor one of which is ensuite.

Key Features

Rooms Information

Kitchen
14′ 9” x 12′ 2” (4.50m x 3.7m)

Living
15′ 9” x 11′ 4” (4.80m x 3.45m)

WC
5′ 5” x 3′ 7” (1.64m x 1.10m)

First Floor

Bedroom 2
15′ 9” x 9′ 3” (4.80m x 2.81m)

Bedroom 4
10′ 4” x 9′ 3” (3.16m x 2.81m)

Bathroom
9′ 1” x 6′ 3” (2.77m x 1.90m)

Second Floor

Bedroom 3
15′ 9” x 7′ 1” (4.80m x 2.15m)

Bedroom 1
15′ 9” x 11′ 11” (4.80m x 3.64m)

En-Suite
8′ 10” x 6′ 7” (2.7m x 2m)

AGENTS NOTE

Please note that the photos advertised are for the show home at Plot 38, and are shown for illustration purposes only.

Address

Plot 36, Monmouth Terrace,, Monmouth Street, Bridgwater, Somerset, TA6 5EJ
Bridgwater
County: Somerset
Sale Type: On Market
Ref #: 12816945

Do you need to sell your home?

Get in touch to book a free valuation.

Open 8:45am - 6pm

Taunton:

Bridgwater

Wellington

Wiveliscombe

Burnham

Call us to book a viewing

Open 8:45am - 6pm

Taunton:

Bridgwater

Wellington

Wiveliscombe

Burnham

Call us to book a viewing

Plot 36, Monmouth Terrace, Monmouth Terrace, Bridgwater Property Enquiry

First Name *
Last Name
Email *
Phone
Contact Preference
Branch to Contact
Additional Information

Taunton:

Bridgwater

Wellington

Wiveliscombe

Burnham

Referral Fees

We routinely refer potential sellers and purchasers to Gibbins Richards Conveyancing – a panel of local law firms. It is their decision whether they choose a law firm from the panel. In making that decision, it should be known that we receive a payment benefit of £150.00 per transaction.

We routinely refer sellers and purchasers to the Mortgage Advice Bureau (MAB) for mortgage advice. It is their decision whether to use these services. In making that decision, it should be known that we receive a payment benefit of £180.00 per case.

We will not discriminate against any prospective buyer because that person will not be, or is unlikely to be accepting any services that we may (directly or indirectly) provide.

Buyers’ Administration Fees

Once an offer on a property is accepted by our client, an administration fee of £40+VAT (£48) per buyer will be required in order for us to process the necessary checks relating to our compliance and Anti-Money Laundering obligations. This is a non-refundable payment and cannot be returned should a purchase cease to continue. 

More Properties

Freehold

Plot 36, Monmouth Terrace, Monmouth Terrace, Bridgwater

4 Bedroom

Terraced

House for sale

BATHROOMS

2

BEDROOMS

4

RECEPTIONS

1

Freehold

Plot 34, Monmouth Terrace, Monmouth Terrace, Bridgwater

3 Bedroom

End Terrace

House for sale

BATHROOMS

2

BEDROOMS

3

RECEPTIONS

2

Freehold

Plot 35, Monmouth Terrace, Monmouth Terrace, Bridgwater

3 Bedroom

Terraced

House for sale

BATHROOMS

3

BEDROOMS

3

RECEPTIONS

2

Freehold

Plot 38, Monmouth Terrace, Monmouth Terrace, Bridgwater

4 Bedroom

Terraced

House for sale

BATHROOMS

2

BEDROOMS

4

RECEPTIONS

2

Freehold

2 Francis Close, Taunton

3 Bedroom

Detached

bungalow for sale

BATHROOMS

2

BEDROOMS

3

RECEPTIONS

2

Freehold

8 NO CHAIN – Belmont Close, Bridgwater

3 Bedroom

Detached

House for sale

BATHROOMS

1

BEDROOMS

3

RECEPTIONS

2